PHOTO
     VIDEO
     PALETTE
     DRAWING
     TEXT

































       

    PLAN AND SECTION
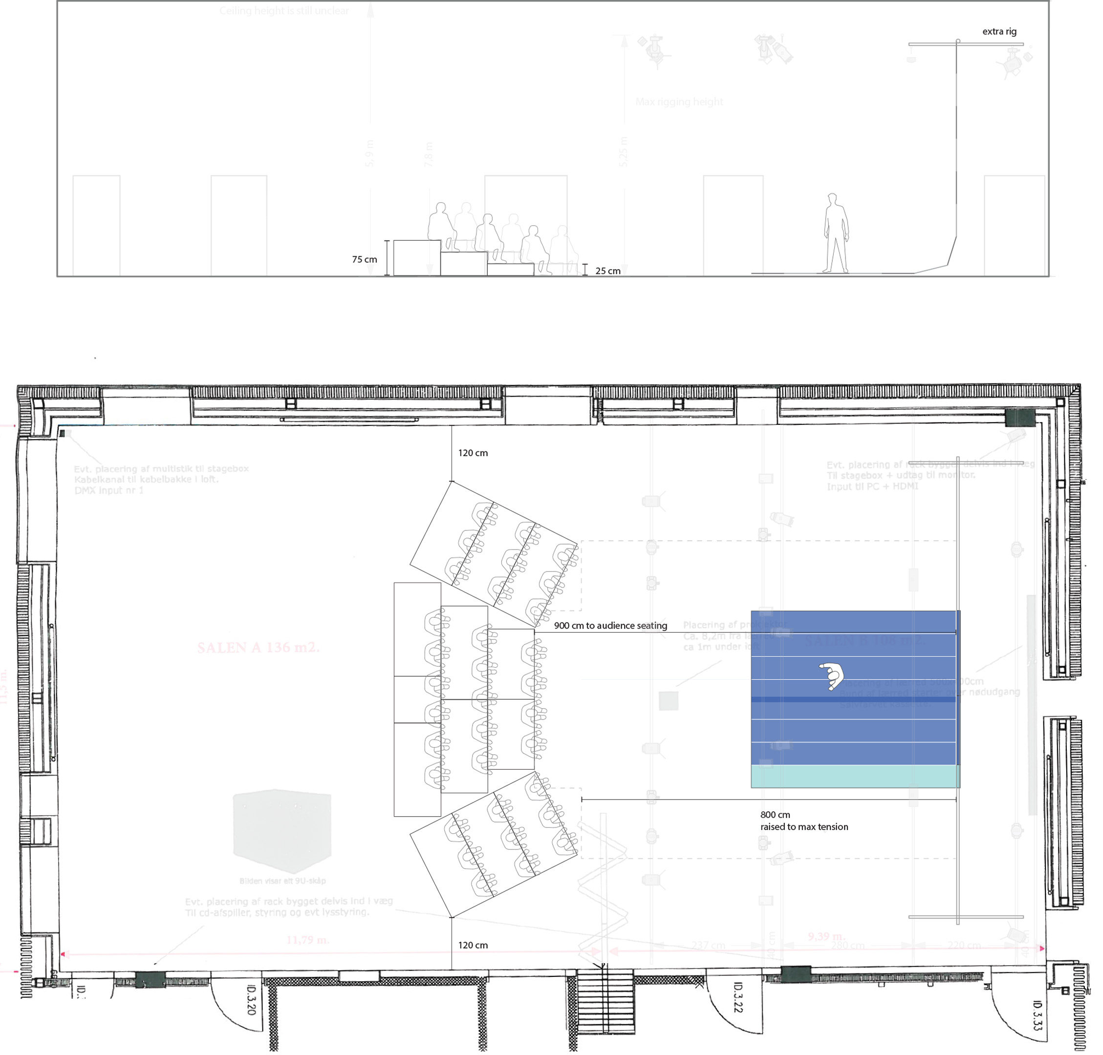
    Backdrop in two positions, audience seating and               backdrop sewing plan
    Salen, BIBLIOTEKET Rentemestervej
    Copenhagen, Denmark